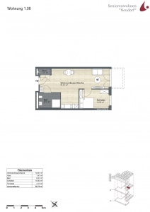
Seniorewohnen-Neudorf_WE.1.08